
























































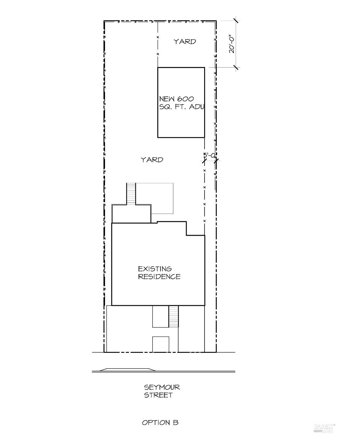
Sophisticated Modern Living, located in Napa's charming Old Town district. This completely reimagined 4-bedroom, 3-bath residence offers the rare opportunity to enjoy sleek, modern living in a classic neighborhood. Taken down to the studs and rebuilt with all new systems including roof trusses, foundation, plumbing, electrical, HVAC, and fire sprinklers. Every inch of this home reflects thoughtful design and high-end craftmanship, all fully permitted by the city of Napa. Interior highlights include wide-plank oak and custom tile flooring, a beautifully designed kitchen and luxe, modern baths. The lower level offers flexible space with future potential as an in-law or Junior ADU. Set on an expansive lot with conceptual plans for a large ADU with a separate gated entry. Also featured is a rare 2-car garage - a true find in this location. With room for a pool, bocce ball court and outdoor kitchen, it's an entertainers dream and just minutes to downtown Napa, this is turnkey living at its finest. Strolling distance to Fuller Park and popular local hang out, Food City Marketplace.