




































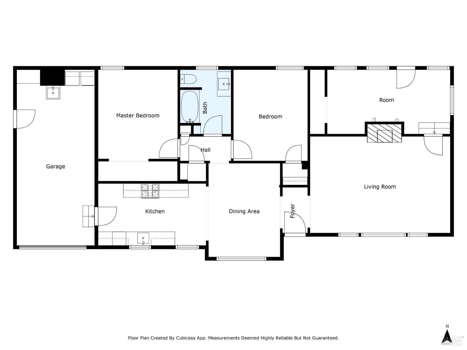
Charming West Side Napa Home with Modern Upgrades & Prime Location. Located in the highly desirable West Side of Napa you will find this sun drenched and beautifully updated home blending timeless charm with modern convenience. The generous living room is bathed in natural light from a large picture window that is centered around a cozy fireplace, creating a warm and inviting space. Hardwood floors flow throughout, leading to a remodeled kitchen featuring Quartz countertops, a gas range, stainless steel appliances, and charming bead board ceilings. A delightful space off the living room offers flexibility as a sweet office or playroom, also adorned with bead board ceilings for added character. This awesome room flows seamlessly to the backyard for easy in/out transition. Spacious bedrooms provide comfort, while the stylishly remodeled bathroom adds a touch of elegance. Enjoy year-round comfort with central heat and air, plus the convenience of an attached garage. With easy freeway access, this home is just minutes from NVLA Elementary, Napa Premium Outlets and the scenic trails of Westwood Hills Park as well as Browns Valley Shopping Center. Offering ample space to entertain and a fantastic location, this Napa gem is not to be missed!