




















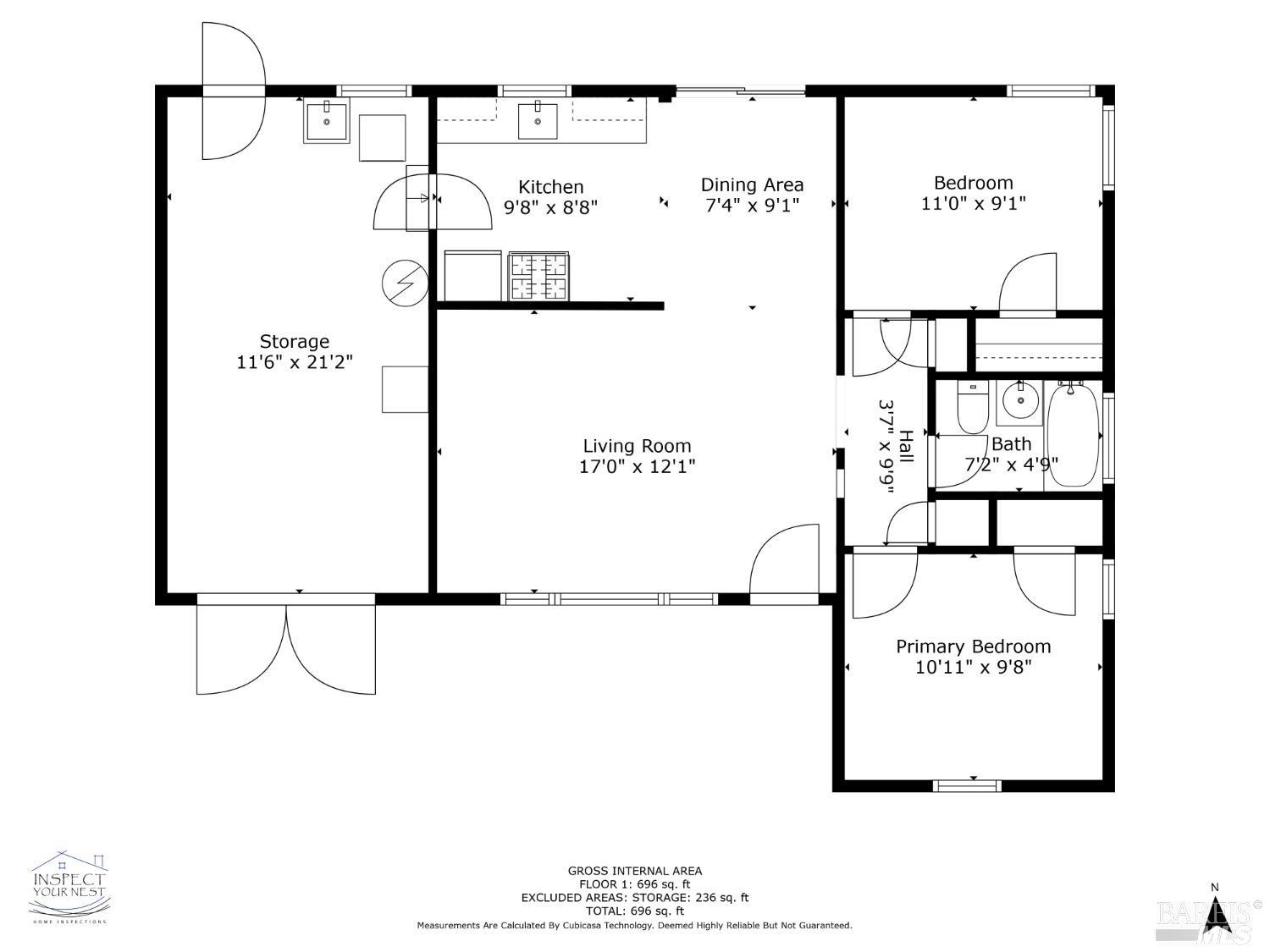
This is a two bedroom, one bath home on a good size parcel with a large deck and covered patio. The deck is overlooking Japanese Maple and Oak tree's along with several fruit tree's including Lomquat, Apple and Pear. There is a single car garage, or can be use as a workshop, and very convenient to schools and the downtown area.